poprosím o názor na projekt rozvodů v mém RD. Projektant úplně moc nekomunikoval, takže jsme se domluvili na začátku, potvrdili si nějaké věci po zaplacení faktury a pak už jen dodal projekt.
Chtěl jsem ještě diskutovat možnost oddělení "zón" pro denní a noční život s ohledem na možné narušení vlivem otevřených dveří na terasu případně vchodových dveří. Tak aby "zelená" zóna a "žlutá" zóna fungovala naprosto samostatně.
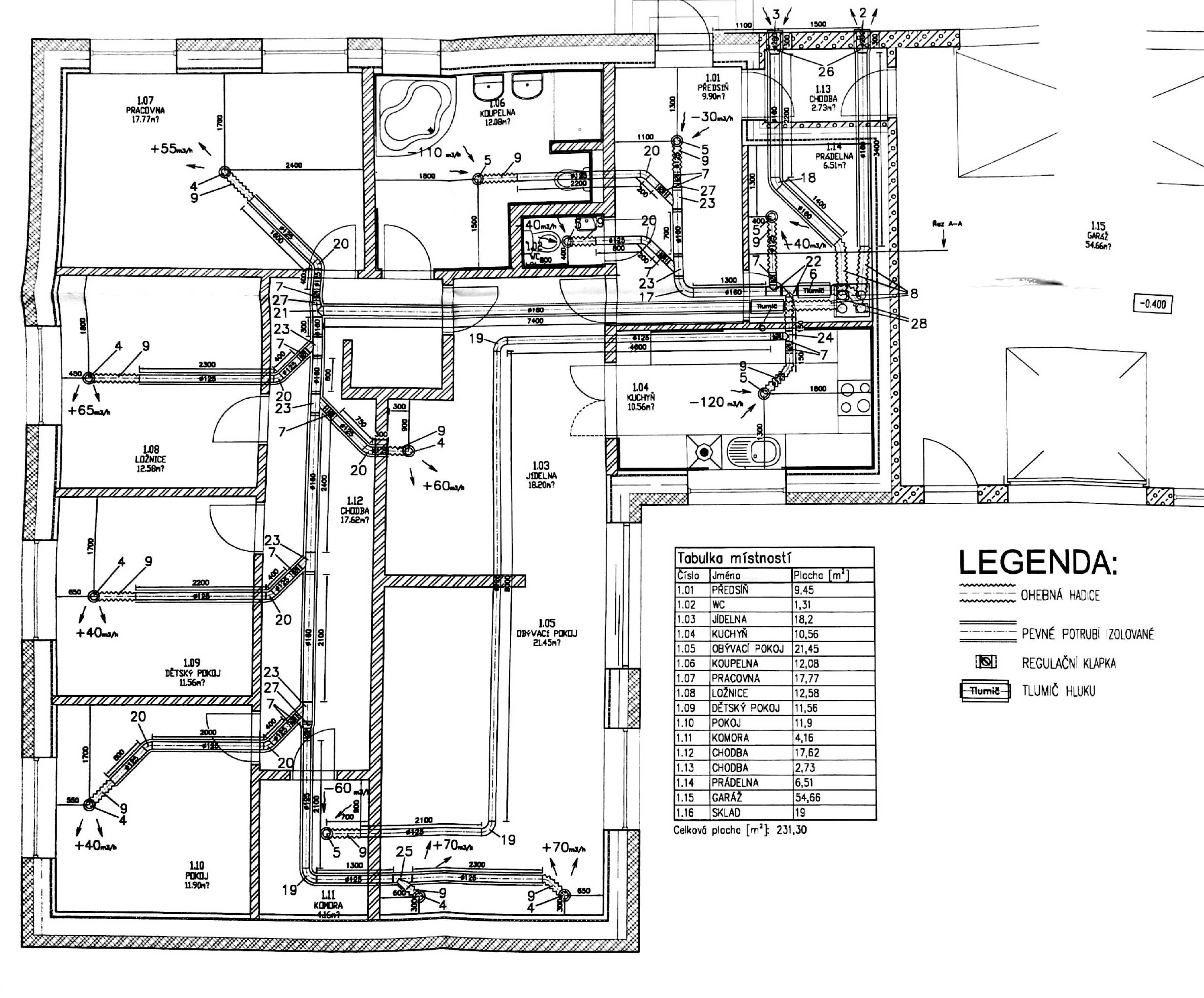
Sken projektu: ZDE (bohužel elektronicky nedodali ani přes výzvu)
Můj návrh zón asi takto - jen je potřeba přenastavit množství vzduchu, aby systém pracoval v rovnotlakém režimu a přidat asi nějaké elektronicky řízené klapky pro oddělení zón. Také se nelekněte původního návrhu rozvodů, ten jsem upravili po prvotní konzultaci s ohledem na přenos hluku mezi zónami.
Otázkou tedy je, jestli vůbec nějaké oddělení řešit - tzn zbytečná náročnost a minimum přínosu a druhak, jestli nebudou přeslechy v rozvodech. Odděluji pokoje akusticky s maximální možnou pečlivostí v otázce stavebních technologií a tak bych nerad, aby mi to tam znělo "trubkou"
Moc díky za každý názor
